Thursday, 15 March 2012
Sunday, 11 March 2012
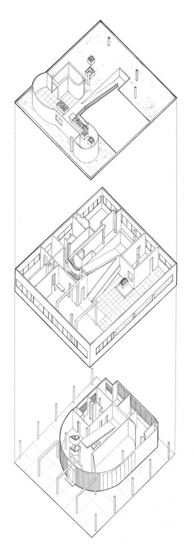
ARCH1201 week 2 analysis of Villa Savoye
The 1st project for me in this semester is Villa Savoye by Le Corbusier, which is one of the masterpieces of postmodern. It is made of reinforced concrete, shaped in rectangle at 22.5 by 20 square meters. The outline is simple, like a white box supported by thin columns. The outer walls are bright and clean without ornaments, but provide a rich change in light and shadow.
The architect, Le Corbusier, who is one of the representatives of 20th century modernism, put a plenty of his thoughts into the house. For example, he thought that modern architectures need to develope with the industrialized society, architects need to research and work out the practical functions and economic problems, and the architectural designs need to involve the use of new materials as well as new structures. He advocate to get rid of the bondage of those outdated architectural style, to freely create new building style, and to develope new architectural aesthetics.
In terms of the architectural designs, Villa Savoye has several characteristics:
1. Modular design. This is a result by Le Corbusier learning mathematics, architecture and proportion of human body from the ancient buildings. Among them, Le Corbusier also put the concept of golden section into the facades, using baseline of 12 degrees to determine the rule of dividing the main parts as well as the slope of the central ramp, the positions of bar windows, the sizes of the window-pane, the width ofthe roadway, etc.
2. Simple adornment style. Both interior and exterior do not have decorative architraves, only to use some curving walls to increase changes. The only be-called adornment part is the long horizontal window, which is in order to let the light in maximumly.
3. Pure coloring. The outer walls use completely white color which represents fresh new, pure, simple and healthy.
4. Open interior space design. The house gives a rich sense of circulation.
6. Design of the rooftop garden. The design is to use sepecific expressing technology which are painting and sculpture.
7. Design of the garage. The special method to organize the traffic streamline makes a perfect unification of the garage and building, enabling cars to park easily and avoiding intersection or overlaping between the traffic and people.
8. Sculptural design. The house offers a sense of sculpture.
Villa Savoye can be the most approriate emple of the five essential factors of the new buiding by Le Corbusier.
1. Pilotis. The ground floor is hollow on three orientations, supported by the pilotis which are put in proportional order.
2. The roof garden. This is intend to recover the ground taken up by the house. The structure of the floating changes the traditional life style of surrounding gardens.
3. The free plan. This is applied by the pilotis and walls which divide the space. Bearing structure and space dividing structure are completely separated, achieving the flexibility and adaptability of the space division dramatically.
4. The free facade. This is equivalent to the vertical free plan. It is an external present of the building's internal conditions.
5. The horizontal window. The long horizontal window can be the only be-called adornment part, which is in order to let the light in maximumly.
The transition of the house can be analyzed as erterior - half exterior - interior - half interior - interior - intirely interior. Firstly from outdoor into indoor on ground level is from the open outdoor, to a gray space set aside, and then to indoor closed space. The ground floor and 1st floor are connected by the ramp, weakening the dividing sense of the two layers. From indoor to outside on the 1st floor is once again from closed to open. Open ramp and broad view linked 1st floor and 2nd floor together visaully. The white walls on the 2nd floor play a role of dividing views. Spiral stairs lead people from half open and open space into closed indoor space.
Villa Savoye has smart appearance, fully-connected space, concise decorating design, forming a sharp contrast with heavy mould, closed space, tedious decorating design of the classical mansion houses.
Subscribe to:
Comments (Atom)















